Бортовой тентованный автомобиль Renault K13 с колесной формулой 6х6 оснащен дизельным двигателем DXi 13 мощностью 449 л.с. Колесная база составляет 4300 + 1370 мм. Габаритные размеры (ДхШхВ) 9738х2448х3429 мм. Максимальный объем перевозимого груза 46 м3.
Чертеж грузовика

Чертеж шасси


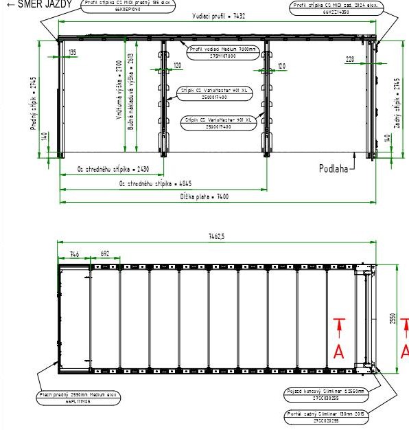
Чертеж кузова



Описание
ДВИГАТЕЛЬ DXi13
Максимальная мощность: 330 кВт при 1404-1900 об/мин.
Максимальный крутящий момент: 2244 Нм за 1000-1404 об/мин.
Рядной 6-цилиндровый двигатель - впрыск под высоким давлением (2400 бар) инжекторными насосами - 24 клапана - кулачковые валы спереди, заднее распределение
Диаметр цилиндров 131 мм – ход поршней 158 мм. Рабочий объем двигателя 12,777 л.
Вентилятор с электронным управлением
Наддувание турбокомпрессором
Направление вращения (если смотреть со стороны КП): против часовой стрелки
Усиленный масляный картер
EURO 5 EEV (Enhanced Environmentally friendly Vehicle)
Экологические нормы ЕВРО 5
Охлаждающая жидкость
Трубка подогрева на двигателе.
ОБОРУДОВАНИЕ ДВИГАТЕЛЯ
Картер руля двигатель алюминий.
Управление замедленными передачами во время движения (тяжелый грунт)
Режим Power (Eco – Eco off)
Устройство для холодного старта предварительным подогревом впускного воздуха
Задний вал отбора мощности двигателя:
Выход: платформа DIN 100
Приведение: непрерывное
Направление вращения: к двигателю
Вращающий момент: 1000 Нм
Коэффициент: 1,26
Расположение: 13 час.
Электронный ограничитель скорости (90 км/ч)
СЦЕПЛЕНИЕ
Однодисковое сцепление диаметром 430 мм.
ЭЛЕКТРОННОЕ ОБОРУДОВАНИЕ
Многоязычный дисплей
Разъем OBD в кабине для получения информации по эксплуатации и диагностике автомобиля
Интерфейс управления парком FMS Gateway
Кнопка помощи для облегчения геолокации с помощью платформы 24/7
Телематический блок TGW3 (telematic gateaway) 4G с антенной и возможностью подписки на сервисы Optifleet (Map, Check, Drive) – автоматическая активация.
SIM-карта AT&T
Система предупреждения о пересечении полосы (LDWS)
КОРОБКА ПЕРЕДАЧА
Коробка передач Optidriver ATO 2612 (11,73 – 0,79) автоматическое сцепление. Алюминиевый картер.
Максимальный крутящий момент 2550 Нм, 12 передач для движения вперед и 3 задних передачи
Выбор режима движения на рулевом колесе (автоматический/ручной) с помощью переключателя передач.
Усиленная коробка переключения передач Optidriver для жестких условий эксплуатации (XTREM)
Мощный охладитель масла коробки передач/воды и воздух/воды
РАЗДАЧНАЯ КОРОБКА
Одноступенчатая раздаточная коробка BTC 2501
Приведение в действие переднего моста путем сцепления кулачковой муфты
МЕДЛЕННЫЙ
OPTIBRAKE+:
Комбинация замедлителя на выхлопе и компрессионных тормозах на клапанах. Полное электронное управление (мощность 414 кВт при 2300 об/мин), подключение к рабочим тормозам.
ВАЛ ПОВЫШЕНИЯ МОЩНОСТИ
Вал повышения мощности S81
Выход: шлицевой вал (DIN 5462).
Направление вращения: против двигателя.
Крутящий момент 1000 Нм.
Передаточные числа: 0,90/1,14
Положение: 18 час.
Рулевое управление
УСИЛИТЕЛЬ КЕРМА С ГИДРАВЛИЧЕСКИМ НАСОСОМ ПЕРЕМЕННОЙ РАСХОДЫ
Передаточное число рулевого механизма 26,2
Гидроусилитель с 1 независимым контуром и 1 насосом.
Правостороннее движение
ПЕРЕДНЕЙ МОСТ
ПЕРЕДНЯ ВОТ
Вот с шарнирами, не требующими обслуживания
Передний мост PA 903
ТОРМОЗНАЯ СИСТЕМА
Рабочие тормоза:
Воздушный компрессор 900 л/мин, 636 см³ двухцилиндровый
Тормозная система с двумя независимыми контурами.
Барабанное торможение
Защита от пыли на заднем тормозе
Электронное управление выработкой воздуха осуществляется с помощью EACU (электронного блока управления пневмоподвеской)
Картридж осушителя оптимизируется с помощью профилактического технического обслуживания.
Стальная защитная обшивка на EACU
Глушитель на пневматической системе
Без прибора для торможения прицепа.
Задние тормозные цилиндры в верхнем положении
Тормозная система ABS в режиме Off Road
Парковочный тормоз:
EPB (Electronic Parking Brake) автоматический парковочный тормоз, невозможность движения обеспечивается пружинными цилиндрами
Усиленный парковочный тормоз
ШИНЫ И КОЛЕСА
Размер 395/85 R20, неспаренные колеса
ШИНЫ: ПРОФИЛЬ
Профиль C. HCS/HCS TUBETYPE
Стальные колеса
Металлические колпаки передних колес
Запасное колесо на временном креплении.
ЗАДНИЙ МОСТ
PMR 2661, двойная редукция
Межколесная блокировка дифференциала
Погрузка на заднюю ось (макс. техническая): 26 т
Ровно распределенная нагрузка на заднюю ось
Передаточное число моста: 3,61
Режим вращения двигателя за 90 км/ч: 1505 об/мин
КАБИНА
Наружная часть кабины:
Day cab
Электрооцинкованная металлическая кабина, отделанная катафорезом.
Цвет кузова: красный RAL 3000
Технический код: 11739
Красная эмблема
Механическая подвеска кабины с четырьмя фиксаторами.
2 зеркала заднего вида с подогревом и дистанционным управлением.
2 широкоугольных зеркала заднего вида.
Наличие камеры для «слепой зоны»
Зеркало заднего вида для парковки.
Общая ширина на уровне зеркал заднего вида 2,550м.
Складное зеркало переднего обзора
ПНЕВМАТИЧЕСКИЙ СИГНАЛ СТАНДРАТНЫЙ
Черное покрытие наружных деталей
Без солнцезащитного козырька
Многослойное тонированное лобовое стекло.
Без окна на задней стенке кабины.
ВНУТРИ:
Черные перила
Отделка салона кабины.
Полка под крышей Quality, 1 отсек запирается на ключ, 1 отсек с сеткой и 4 модуля ISO
Солнечный козырек на лобовом стекле и боковом стекле водителя
С цифровой камерой и 5 цифровыми разъемами
Подготовка С.В.
Цифровой хронотахограф DTCO 3.0
Розетка 24 В на полке
Ручной вентиляционный люк на крыше
Противомоскитная сетка на вентиляторе
Резиновый коврик
СИДЕНИЕ ВОДИТЕЛЯ COMFORT:
Регулируемая вертикальная амортизация
Наклон подушки сиденья
Регулировка по длине и высоте
Съемный чехол
Регулируемый подголовник
Функция быстрого опускания сиденья с запоминанием регулировки высоты
Регулировка боковой опоры спинки сиденья
Регулировка боковой опоры подушки сиденья
Регулируемая поясничная опора
Выдвижная подушка сиденья
Система подогрева (сидение водителя)
Функция блокировки подвески сиденья водителя
Два подлокотника водителя
Красные ремни безопасности
Напоминание о необходимости пристегнуть ремень безопасности
Пневмоподвеска
Регулируемый вертикальный амортизатор
Подголовник
Регулировка по высоте
Простой доступ
Карман для хранения вещей на задней поверхности спинки
2 подлокотника
Третье центральное сиденье
Два подлокотника пассажира
Тканевая обивка сидений
Разъем для обдувателя
Вентилятор в салоне
Лампы для чтения в полке
Прямое освещение кабины
Постепенное освещение кабины
2 вешалки с задней стороны
Аптечка
Электростеклоподъемники
Автономный обогреватель кабины мощностью 2 кВт (воздух/воздух). Подача воздуха через три вентиляционных отверстия (за левым сиденьем, за правым сиденьем и над спальной полкой).
Кондиционер с электронной регулировкой.
Фильтрация воздуха кабины, моющий фильтр
Инструкция по эксплуатации на украинском языке.
2 динамика + 2 высокочастотных динамика
Подготовка для установки радиотелефона (проводка и антенна на крыше)
Журналист (регистрация времени работы двигателя).
Огнетушитель 2 кг в кабине, доступный изнутри и снаружи кабины.
Оборудование на руле:
4-спицевой руль "Performance" с регулировкой высоты и глубины и с переключателем регулятора скорости
Орган управления OPTIDRIVER
Орган управления замедлителем и OPTIBRAKE вправо.
Рулевая колонка с 3 положениями регулировки
Откидной столик
Многофункциональный экран с радио DAB
Приборная панель:
КОМПАКТНАЯ панель приборов
Цветной дисплей 12" HD
Подготовка для установки радиотелефона (проводка и антенна на крыше)
Розетка 12+ 24 В на приборной панели для дополнительного оборудования.
Иммобилайзер с управлением через ключ с ответчиком.
Предварительное оборудование для алкотестера с функцией блокировки включения автомобиля
Кнопка запуска
Заданное клиентом регулируемое значение превышения скорости на спуске
Регулятор скорости и ограничитель скорости с возможностью настройки с помощью вращающего органа управления
Интеллектуальная система контроля скорости. Интеллектуальная система контроля скорости: распознавание знаков ограничения скорости, индикация на дисплее в кабине и предупреждение об обгоне.
Режим Power (Eco – Eco off)
Без режима Eco
ЭЛЕКТРИЧЕСКОЕ ОБОРУДОВАНИЕ
Аккумуляторные батареи AGM 210 А*ч
Ручное отключение аккумулятора
Переход электрического контура в режим ожидания
Индикатор заряда аккумулятора
Генератор 150 А
Защитная решетка на задних фонарях
Светодиодные задние приборы освещения и сигнализации (стандарт CEE e2 10113)
Подготовка к установке двух боковых рабочих фар.
2 задних рабочих фонаря на шасси
ШАССИ
Защитное красочное покрытие цветной рамы «Серый минерал»
Технический код: 03650
Усиленная рама от задней части двигателя к задней части рамы
Стандартный свес с отверстиями для кузовщика.
Усиленная передняя съемная скоба для буксировки
ЗАДНИЙ ПРОТИВОПОДКАТНЫЙ БРУС
Средняя траверса трансмиссии
Задняя запирающая траверса с предварительно высверленными отверстиями для прицепного устройства
Двойная фильтрация воздуха для атмосферы с увеличенным содержанием пыли
Задние крылья с подкрылками
Рекомендуется высокое расположение крыльев (+30 мм) для эксплуатации автомобиля на плохих и очень плохих дорогах.
2 гибких противооткатных упора
Упор переднего колеса
Выхлоп в колею.
ВНЕШНЕЕ ОСВЕЩЕНИЕ И ОБОРУДОВАНИЕ
Стальной бампер
Выдвижная ступень доступа к лобовому стеклу на радиаторе и под бампером.
Доступ к месту водителя через 4 ступени. 1-я гибкая ступенька из композитного материала
Освещение подножки
Усиленные ступени доступа к кабине
Металлические пороги дверей
3 секции бампера, окрашенные в черный цвет.
Лестница позади кабины и поручней
Дневные огни
Подготовка к установке плоскости под фары на крыше
Передние противотуманные фары.
Подготовка для установки маячков.
ПОДВЕСКА
Передняя подвеска
Передняя параболическая подвеска - с усиленными 4-листовыми рессорами
Передний стабилизатор.
Задняя подвеска
Задние 3-пластинчатые параболические рессоры
Задний стабилизатор
Топливный бак
Основной алюминиевый топливный бак.
Бак на 415 литров (D560) справа
Электрический обогреватель на дизельном фильтре
Подогрев и изоляция дизельной системы
Фильтр грубой очистки с отстойником, усиленный (R90). Управление ливнем из приборной панели.
AdBlue
Бак AdBlue на 48 л.
Профиль в форме D 560 мм в диаметре.
Бак для мочевины справа
СТАНДАРТНОЕ ОБОРУДОВАНИЕ
Полный набор инструментов
Манометр давления в шинах
ШЛАНГ ДЛЯ НАКАЧИВАНИЯ КОЛЕС
Домкрат 20 т
2 знака аварийной остановки.
Звуковой сигнал заднего хода.
Объем резервуара для стеклоомывателя 8,8 литра.
КУЗОВ
НАБОР ПРУЖИН И БОЛТОВ ДЛЯ ГИБКОГО КРЕПЛЕНИЯ ПОДРАМНИКА
КРОНШТЕЙНЫ Вдоль РАМЫ ДЛЯ КРЕПЛЕНИЯ НАДРАМНИКА
Доступ к перегородке кабины для кузовщика.
2 регулируемых фонаря, установленных в верхней части задней части кабины.
Оранжевые светодиодные боковые огни с рефлектором
Интерфейс для соединения кузова и модуля ВВМ (Body Builder Module)
Электрический интерфейс кузовостроителя на раме
Подготовка к установке электричества для крана
СЕРВИС
Optifleet:
Предварительное оснащение Optifleet Check по подписке в месяц: отчеты технических данных для отслеживания расхода топлива на автомобиль и водителя; активация услуги по заказу путём внесения стоимости месячной подписки.
Предварительное оснащение Optifleet Map на лунной основе: геопозиционирование автомобиля, функция "гео-барьер" и анализ маршрутов. Активация услуги по заказу путем внесения месячного абонемента.
Доступное время
|
Наружные размеры фургона ДхШхВ |
8100х2620х2720 |
|
Внутренние размеры фургона ДхШхВ |
7700х2500х2420 |
|
Конструкция фургона |
Каркасно-сварная |
|
Тип фургона |
Бортовой тентованный (штора) |
|
Тент |
ПВХ |
|
Борты |
Двухсекционный, алюминий |
|
Центральная перемычка |
1 или 2 шт. |
|
Механизм сдвига тента (с 2 сторон) |
Механизм сдвига тента разделен с алюминиевыми или стальными направляющими, со штанговым механизмом натяжения штор |
|
Дверь |
распашные |
|
Передняя стенка |
Жесткая передняя стенка в передней части платформы |
|
Пол |
лист оцинкованный 0.8мм, фанера влагостойкая 20мм и рифленый алюминий 1мм.
|
|
Крыша |
Тентованая |
|
Колесная база |
|
мм |
4,300 |
|
Полезная нагрузка |
(C) |
кг |
18255 |
|
Макс. масса для регистрации |
Всего (полная масса автомобиля) |
кг |
29000 |
|
передняя группа осей |
кг |
10000 |
|
|
Передняя ось 1 |
кг |
10000,00 |
|
|
задняя группа осей |
кг |
22400 |
|
|
ось задняя 1 |
кг |
11200 |
|
|
ось задняя 2 |
кг |
11200 |
|
|
Вес шасси-кабины |
всего |
кг |
10745 |
|
Передняя ось 1 |
кг |
5899,00 |
|
|
ось задняя 1 |
кг |
2423,00 |
|
|
Ось задняя 2 |
кг |
2423,00 |
|
|
передняя группа осей (ось на уровне земли) |
кг |
5899 |
|
|
задняя группа осей (ось на уровне земли) |
кг |
4846 |
|
|
Общий вес автомобиля с погрузкой, погрузка на YMAX |
передняя группа осей |
кг |
9799,00 |
|
задняя группа осей |
кг |
19201,00 |
|
|
Общий вес автомобиля с погрузкой, погрузка на YMIN |
передняя группа осей |
кг |
7840,00 |
|
задняя группа осей |
кг |
21160,00 |
|
Колесная база |
|
мм |
4,300 |
|
Передний свис |
(H/BEP L016) |
мм |
1488 |
|
Колесная база |
(F/BEP L011) |
мм |
4300 |
|
Техническая колесная база |
(F'/BEP L015) |
мм |
4985 |
|
Межосевое расстояние |
оси 2-3 (BEP L012.2) |
мм |
1370,00 |
|
Задний свис |
Шасси, габариты (BEP L017) |
мм |
2266 |
|
Задний свес кузова |
мин. (Xmin/BEP L017) |
мм |
2195 |
|
макс. (Xmax: BEP L017) |
мм |
3265 |
|
|
Задний свис |
от края технической колесной базы (N') |
мм |
2669,00 |
|
Вход в кабину |
(B/BEP L102) |
мм |
660 |
|
Длина кузова |
мин. (Wmin/BEP L105) |
мм |
6520 |
|
макс. (Wmax/BEP L105) |
мм |
7590 |
|
|
Центр веса погрузки |
всего (Y/BEP?) |
мм |
0 |
|
макс. (Ymax/BEP L103) |
мм |
1065 |
|
|
мин. (Ymin/BEP L104) |
мм |
530 |
|
|
Цент тяжести автомобиля |
по X (BEP L044) |
мм |
2264,00 |
|
Общая длина шасси-кабины |
(A/BEP L001) |
мм |
9283 |
|
Колесная база |
|
мм |
4,300 |
|
Клиренс, с погрузкой |
задн. (U3/BEP H016) |
мм |
352 |
|
перед. (U1/BEP H015) |
мм |
380 |
|
|
Макс. наружная высота в пустом режиме |
(BEP H001) |
мм |
3603 |
|
Макс. наружная высота с откинутой кабиной, в пустом режиме |
(O1/BEP H061) |
мм |
4083,00 |
|
Высота от крыши до земли |
(O) |
мм |
3429 |
|
Расстояние между землей / самой низкой точкой передней части автомобиля |
в пустом режиме (H0 / BEP H18) |
мм |
|
|
с нагрузкой (H0/BEP H18) |
мм |
580,00 |
|
|
Высота между землей/верхней частью лонжерона на передней оси |
в пустом режиме (H1 / BEP H035) |
мм |
1304,00 |
|
с нагрузкой (H1/BEP H036) |
мм |
1235,00 |
|
|
Высота между землей/верхней частью лонжерона на уровне моста |
в пустом режиме (H2/BEP H037) |
мм |
1279 |
|
с нагрузкой (H2/BEP H038) |
мм |
1202 |
|
|
Высота между землей/верхней частью лонжерона по заднему краю |
в пустом режиме (HN) |
мм |
1259,00 |
|
с нагрузкой (HN) |
мм |
1176,00 |
|
|
Цент тяжести автомобиля |
в пустом режиме по Z (BEP H044) |
мм |
989,00 |
|
Высота лонжеронов |
(BEP H032) |
мм |
300,00 |
|
Колесная база |
|
мм |
4,300 |
|
Расстояние между передней частью автомобиля и серединой буксировочного устройства |
(BEP L045+L016) |
мм |
|
|
Межосевое расстояние между последней осью/серединой буксировочного устройства |
|
мм |
|
|
Высота между тягово-прицепным устройством/верхней частью лонжерона. |
(BEP H045) |
мм |
|
|
Колесная база |
|
мм |
4,300 |
|
Макс. наружная ширина кабины (со сложенными зеркалами заднего вида) |
(BEP W001) |
мм |
2529,00 |
|
Максимальная ширина кабины |
(BEP W002) |
мм |
2529 |
|
Ширина рамы |
спереди (BEP W035) |
мм |
1080 |
|
в задней части (BEP W036) |
мм |
852 |
|
|
Ширина на уровне задних колес |
Задняя ось 1 (V3 / BEP W003.2) |
мм |
2448 |
|
Колея |
задняя 1 (V2/BEP W013.2) |
мм |
2062 |
|
перед. (V1/BEP W013.1) |
мм |
2138 |
|
Колесная база |
|
мм |
4,300 |
|
Задний угол |
(BEP H010) |
° |
33 |
|
Угол подъема |
(BEP H012) |
° |
26,00 |
|
Угол наклона |
(BEP H011) |
° |
10,00 |
|
Толщина лонжеронов |
(BEP W034) |
мм |
13,00 |
|
Радиус поворота |
габарит. (BEP W012) |
мм |
10150,00 |
|
между тротуарами |
мм |
9593,00 |
|
|
внутр. |
мм |
5481,00 |