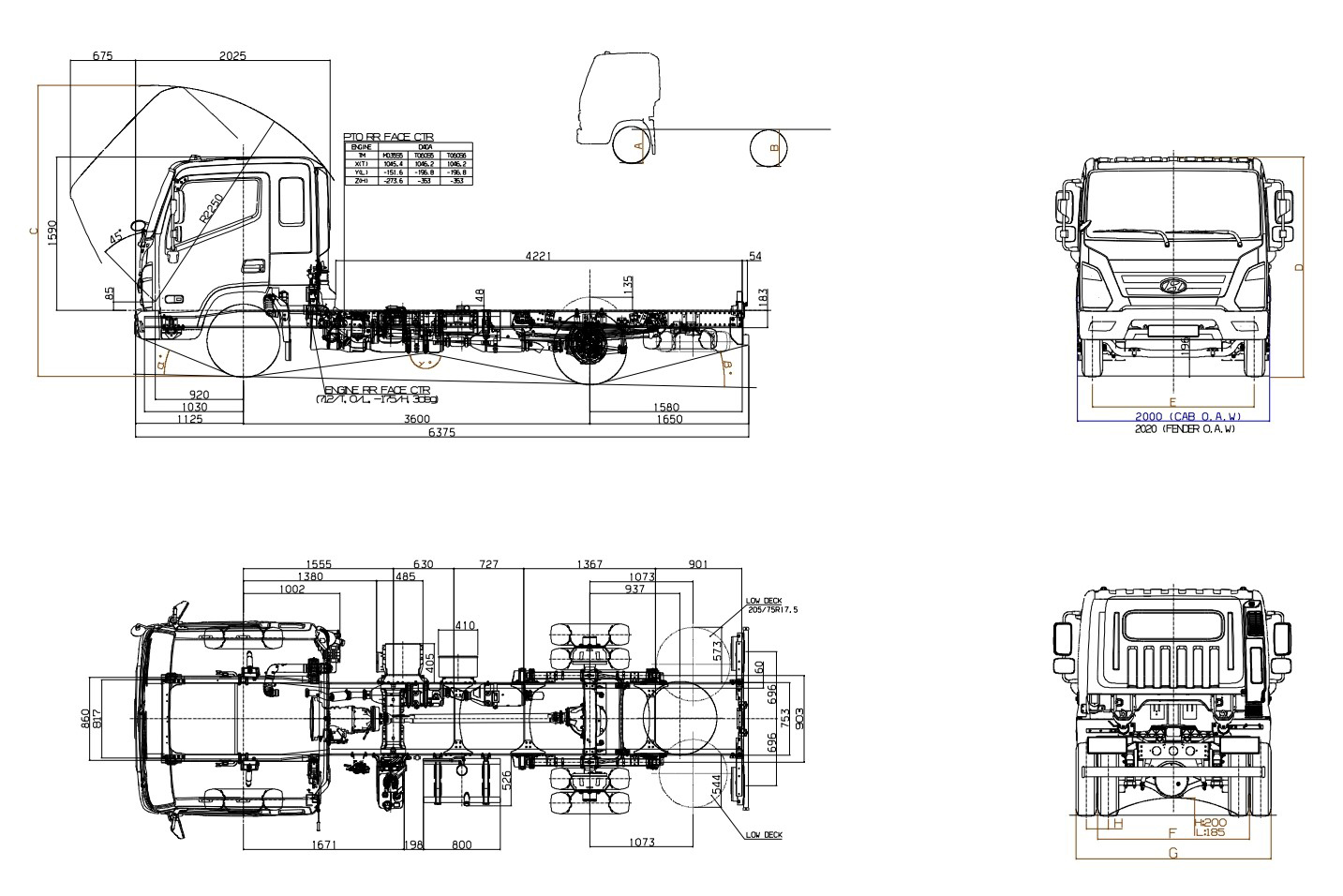
Бортовой грузовик HYUNDAI QT EX10 с краном-манипулятором FASSI F95B — среднего класса с колесной формулой 4×2, предназначен для выполнения погрузочно-разгрузочных работ без привлечения дополнительной подъемной техники. Габаритные размеры шасси (Д×Ш×В) 6375 × 2028 × 2290 мм. Оснащен дизельным двигателем модели Hyundai D4GA мощностью 170 л.с. Максимальная грузоподъемность КМУ 4,4 т., а максимальная длина стрелы 16,5 м. Размеры бортовой платформы (ДхШхВ) 4500 × 2250 × 600 мм.
Чертеж




Описание
Бортовый грузовик HYUNDAI QT EX10 с краном-манипулятором FASSI F95B — среднего класса с колесной формулой 4×2, предназначенный для выполнения погрузочно-разгрузочных работ без привлечения дополнительной. Комбинация грузового шасси, бортовой платформы и КМУ делает автомобиль универсальным решением для строительства, монтажных работ, коммунального хозяйства и логистики.
Шасси Hyundai EX10 имеет полную массу 10 300 кг и грузоподъемность шасси 7 000 кг, что позволяет эффективно работать с грузами среднего класса. Колесная база составляет 3600 мм, что обеспечивает баланс между маневровостью и устойчивостью при работе с краном. Допустимая нагрузка на оси составляет 3700 кг на переднюю ось и 6600 кг на заднюю ось. Габаритные размеры шасси — 6375 × 2028 × 2290 мм, что соответствует требованиям городской и междугородной эксплуатации.
Силовой агрегат — дизельный двигатель Hyundai D4GA рабочим объемом 3933 см³, который соответствует экологическому стандарту Euro 5. Мощность двигателя составляет 170 л.с. при 2500 об/мин, а максимальный крутящий момент — 609 Нм при 1200 об/мин, что обеспечивает уверенную тягу при полной загрузке и работе с КМУ. Двигатель агрегатируется с механической коробкой передач T0 60S5 с 6 передними и 1 задней передачей.
Тормозная система — полностью пневматическая, с барабанными тормозами на передней и задней осях, которая соответствует классу автомобиля и условиям эксплуатации. Автомобиль оснащен шинами 225 R70/17.5, топливный бак имеет объем 150 л, что обеспечивает достаточный запас хода.
Кран-манипулятор FASSI F95B относится к гидравлическим КМУ среднего класса. Он обеспечивает максимальную грузоподъемность 4,4 т и оснащен стрелой с максимальной длиной 16,5 м. Угол поворота колонны составляет 410°, что позволяет выполнять работы с большой зоной охвата без перестановки автомобиля. Компактные габариты КМУ позволяют сохранить полезное пространство бортовой платформы.
Бортовая платформа выполнена в виде металлического прямобортного кузова с откидными задним и боковыми бортами. Размеры платформы составляют 4500×2250×600 мм. Основание пола изготовлено из рифленой стали, борта — алюминиевые, с надежными замками. Предусмотрены легкосменные боковые стойки, что упрощает адаптацию кузова под разные типы грузов.
| Параметр | Показатель |
| Модель автомобиля | HYUNDAI QT EX10 |
| Тип | Бортовый грузовик из КМУ |
| Страна производитель | Корея |
| Колесная формула | 4×2 |
| Колесная база | 3600 мм |
| Полная масса автомобиля | 10300 кг |
| Снаряженная масса шасси | 3300 кг |
| Грузоподъемность шасси | 7000 кг |
| Нагрузка на переднюю ось | 3700 кг |
| Нагрузка на заднюю ось | 6600 кг |
| Габаритные размеры (Д×Ш×В) | 6375 × 2028 × 2290 мм |
| Двигатель | Hyundai D4GA |
| Рабочий объем | 3933 см³ |
| Мощность | 170 л.с. / 2500 об/мин |
| Крутный момент | 609 Н·м / 1200 об/мин |
| Экологический стандарт | Euro 5 |
| КПП | T0 60S5, механическая |
| Количество передач | 6 вперед / 1 назад |
| Тормозная система | Пневматическая, барабанная (перед/зад) |
| Шины | 225 R70/17.5 |
| Топливный бак | 150 л |
| КМУ | FASSI F95B |
| Максимальная грузоподъемность КМУ | 4,4 т |
| Максимальная длина стрелы | 16,5 м |
| Угол поворота КМУ | 410° |
| Размеры бортовой платформы | 4500 × 2250 × 600 мм |
| Материал пола | Рифлёная сталь |
| Материал бортов | Алюминий, откидные |
Особенности
✅ Грузоподъемность шасси 7 000 кг
-
Позволяет перевозить значительные грузы без перегрузки автомобиля.
✅ КМУ FASSI F95B (4,4 т, стрела 16,5 м)
-
Обеспечивает самостоятельную загрузку и разгрузку на большом радиусе.
✅ Угол поворота КМУ 410°
-
Позволяет работать почти по кругу без перестановки автомобиля.
✅ Двигатель D4GA, 170 л.с., 609 Н·м
-
Обеспечивает достаточную тягу для работы с краном и грузом.
✅ Бортовая платформа 4500×2250 мм
-
Подходит для перевозки паллет, металлоконструкций и стройматериалов.
✅ Пневматический тормоз и рифленый стальной пол
-
Повышают безопасность и износостойкость при интенсивной эксплуатации.