Бортовий автомобіль ТК-RET-КМ-135 на базі шасі Renault Trucks D18 з встановленою крано-маніпуляторною установкою Fassi F135A.0.23 є універсальним рішенням для перевезення, завантаження та розвантаження різноманітних вантажів без залучення додаткової підйомної техніки. Колісна формула 4х2, колісна база 3800 мм. КМУ Fassi F135A.0.23 вантажопідйомністю 11,7 т., а його максимальна довжина стріли 13,5 м.
Креслення


Опис
Бортовий автомобіль ТК-RET-КМ-135 на базі шасі Renault Trucks D18 з встановленою крано-маніпуляторною установкою Fassi F135A.0.23 є універсальним рішенням для перевезення, завантаження та розвантаження різноманітних вантажів без залучення додаткової підйомної техніки. Конструкція автомобіля оптимально поєднує можливості вантажної платформи та гідравлічного крана, що значно підвищує автономність і ефективність роботи.
Базове шасі з колісною формулою 4×2 має повну масу 18 000 кг, колісну базу 3800 мм та забезпечує корисне навантаження до 12 459 кг. Допустиме навантаження на передню вісь становить 7100 кг, на задню — 11 500 кг, що гарантує правильний розподіл маси при роботі з краном і перевезенні вантажів.
Бортова платформа має внутрішні розміри 4700×2500×580 мм та об’єм близько 7 м³. Конструкція кузова виконана у вигляді металевої прямобортної платформи з можливістю тристороннього відкривання бортів, що значно спрощує процес завантаження і розвантаження. Підлога виготовлена з рифленої сталі, що забезпечує протиковзкі властивості та довговічність. Борти — алюмінієві, легкі та стійкі до корозії, оснащені надійними замками європейського виробництва. Додатково передбачені легкознімні бічні стійки, що дозволяє швидко адаптувати платформу під різні типи вантажів.
За кабіною встановлено кран-маніпулятор Fassi F135A.0.23, який має вантажний момент 11,7 т·м і забезпечує вантажопідйомність до 5430 кг на мінімальному вильоті 2,15 м. При збільшенні вильоту стріли вантажопідйомність становить:
-
2690 кг на 4,35 м
-
1825 кг на 6,15 м
-
1355 кг на 8,05 м
-
1075 кг на 10,05 м
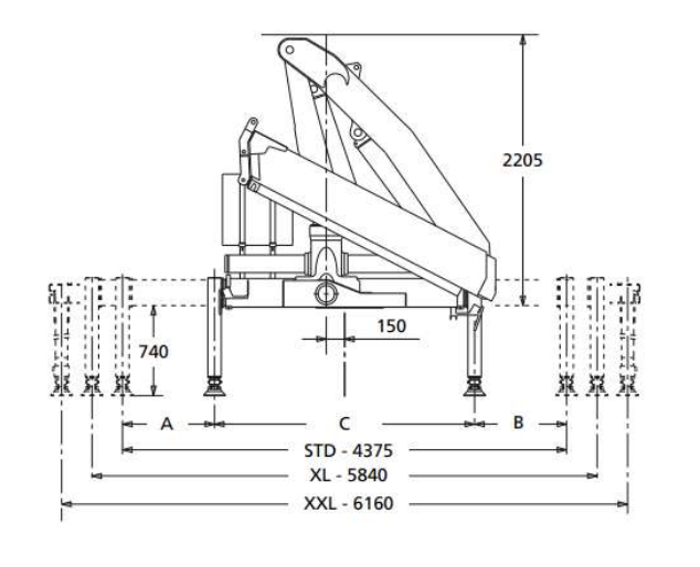
Максимальний виліт 3-секційної стріли складає 10,05 м, а максимальна висота підйому досягає 13,5 м, що дозволяє виконувати роботи на значній висоті. Кут обертання становить 390°, що забезпечує розширену робочу зону. Вага КМУ — 1,91 т, що враховано у загальному балансі шасі. Завдяки поєднанню вантажної платформи та крано-маніпуляторної установки, автомобіль здатен ефективно працювати в умовах будівництва, логістики, комунального господарства та інших сфер, де важлива мобільність і автономність.
| Параметр | Показник |
| Модель | ТК-RET-КМ-135 |
| Базове шасі | Renault Trucks D18 |
| Колісна формула | 4x2 |
| Повна маса | 18 000 кг |
| Колісна база | 3800 мм |
| Корисне навантаження | 12 459 кг |
| Навантаження на передню вісь | 7100 кг |
| Навантаження на задню вісь | 11 500 кг |
| Тип платформи | Бортова, відкрита, з КМУ |
| Об’єм кузова | 7 м³ |
| Довжина платформи | 4700 мм |
| Ширина платформи | 2500 мм |
| Висота бортів | 580 мм |
| Матеріал підлоги | Рифлена сталь |
| Матеріал бортів | Алюміній |
| Тип розвантаження | 3-стороннє |
| Модель КМУ | Fassi F135A.0.23 |
| Вантажний момент | 11,7 т·м |
| Макс. виліт стріли | 10,05 м |
| Макс. висота підйому | 13,5 м |
| Кут обертання | 390° |
| Вантажопідйомність (2,15 м) | 5430 кг |
| Вантажопідйомність (4,35 м) | 2690 кг |
| Вантажопідйомність (6,15 м) | 1825 кг |
| Вантажопідйомність (8,05 м) | 1355 кг |
| Вантажопідйомність (10,05 м) | 1075 кг |
| Маса КМУ | 1 910 кг |
| Маса автопоїзда | 10 000 – 20 000 кг |
Особливості
✅ Комбінована функціональність (борт + КМУ)
-
Автомобіль поєднує перевезення вантажів і самостійне їх завантаження/розвантаження, що зменшує потребу у додатковій техніці.
✅ Тристороннє відкривання бортів
-
Дозволяє працювати з вантажем з будь-якої сторони, що значно пришвидшує логістичні операції.
✅ Потужний КМУ (до 5,4 т)
-
Дає можливість працювати з важкими вантажами без втрати ефективності.
✅ Великий виліт стріли (до 10,05 м)
-
Забезпечує роботу на відстані без переміщення автомобіля.
✅ Висота підйому до 13,5 м
-
Дозволяє виконувати монтажні роботи на висоті (будівництво, встановлення конструкцій).
✅ Повний кут обертання 390°
-
Розширює робочу зону та підвищує маневреність.
✅ Міцна платформа з рифленої сталі
-
Забезпечує довговічність і безпечне транспортування вантажів.
✅ Алюмінієві борти
-
Зменшують вагу конструкції та не піддаються корозії.
✅ Висока вантажопідйомність шасі (12,4 т)
-
Дозволяє перевозити значні обсяги вантажу разом із встановленим краном.
✅ Готовність до інтенсивної експлуатації
-
Конструкція адаптована під щоденну роботу у важких умовах.