Шасі Scania G360 — магістральне вантажне шасі з колісною формулою 4×2, призначене для встановлення довгих надбудов та експлуатації на міжміських і міжнародних маршрутах. Габаритні розміри шасі (ДхШхВ) 9400×2500×3000 мм. Колісна база 5550 мм. Оснащений дизельним двигуном потужністю 360 к.с. (265 кВт). Вантажопідйомність 10500 кг. Кабіна однорядна.
Креслення

Опис
Шасі Scania G360 — магістральне вантажне шасі з колісною формулою 4×2, призначене для встановлення довгих надбудов та експлуатації на міжміських і міжнародних маршрутах. Автомобіль 2024 року випуску виконаний у конфігурації Euro 5 та орієнтований на роботу з великим корисним простором рами.
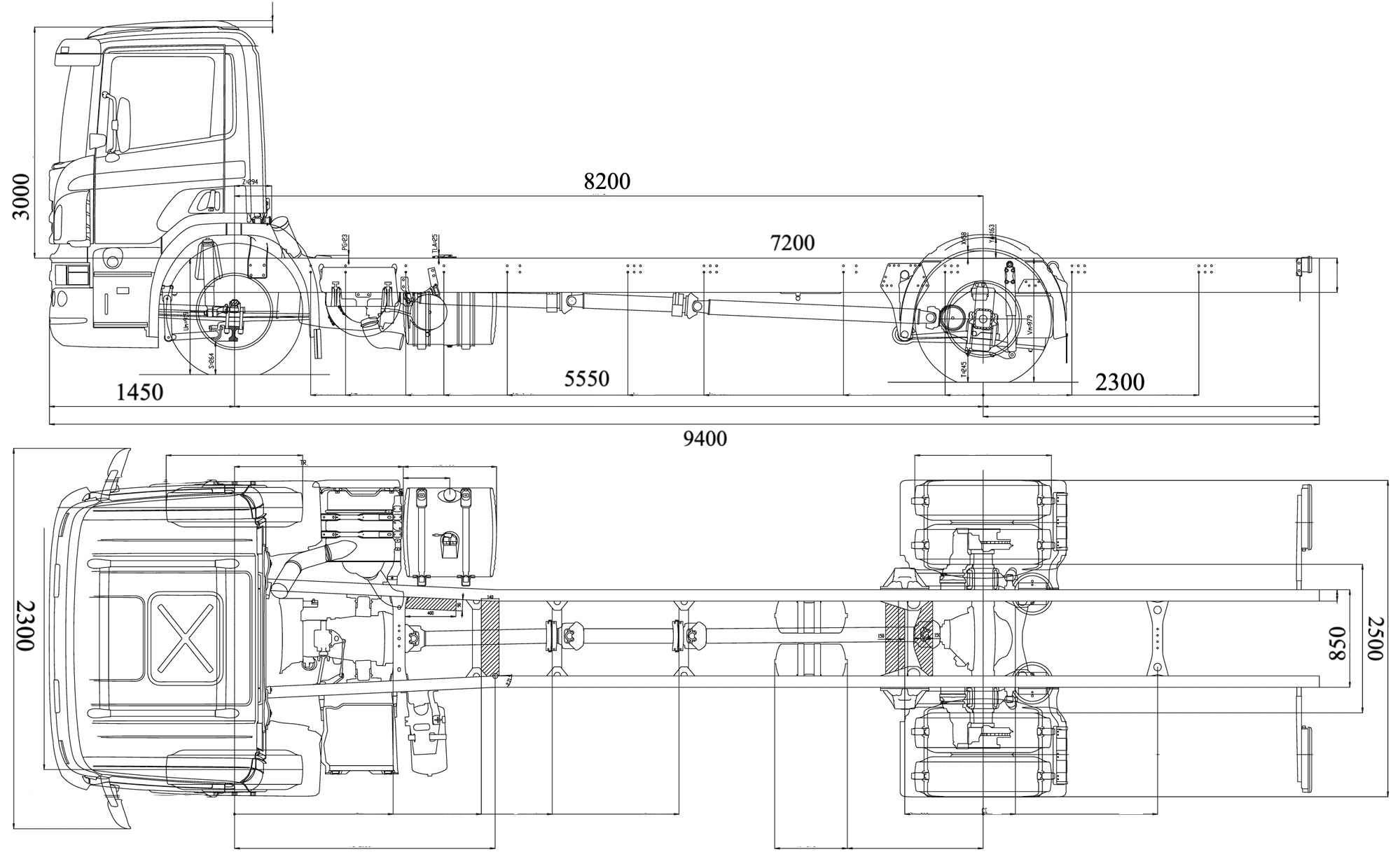
Габаритні розміри шасі становлять 9400 × 2500 × 3000 мм (Д×Ш×В). Колісна база між першою та другою віссю складає 5550 мм, що у поєднанні з переднім звісом 1450 мм та заднім звісом 2300 мм забезпечує стабільність руху та правильний розподіл навантаження при встановленні надбудов. Повна довжина рами дорівнює 8200 мм, при цьому корисна (монтажна) довжина рами — 7200 мм, що дозволяє встановлювати довгі кузови без конструктивних обмежень.
Ширина рами по зовнішніх краях складає 850 мм, а ширина кабіни — 2300 мм (без дзеркал), що відповідає стандартам магістральних вантажних автомобілів. Колія коліс становить 2050 мм на передній осі та приблизно 1850 мм на задній осі, що позитивно впливає на курсову стійкість при повному завантаженні.
Силовий агрегат розвиває потужність 360 к.с. (265 кВт) та відповідає екологічному стандарту Euro 5. Двигун агрегатується з автоматичною коробкою передач Scania GR875, що забезпечує плавне перемикання передач і зменшує навантаження на водія під час тривалих поїздок.
Ходова частина має дві осі, підвіску типу ресора / пневмо, що поєднує вантажну міцність і підвищений комфорт руху. Колісна формула 4×2 оптимальна для магістральних перевезень та експлуатації на твердому покритті. Шасі комплектується шинами 315/70R22,5, розрахованими на роботу у важкому дорожньому режимі.
Паливна система оснащена паливним баком об’ємом 400 л, що забезпечує значний запас ходу без частих дозаправок. Гальмівна система включає ABS, а система курсової стабілізації ESP підвищує безпеку руху.
Кабіна обладнана спальним місцем, що робить автомобіль придатним для далеких рейсів. Оснащення для комфорту включає круїз-контроль, сонцезахисний козирок та кондиціонер. Рульове управління виконане з електропідсилювачем EPS, що зменшує втому водія при тривалій експлуатації.
| Параметр | Показник |
| Модель | Scania G360 4×2 |
| Тип | Вантажівка-шасі |
| Рік випуску | 2024 |
| Колісна формула | 4×2 |
| Кількість осей | 2 |
| Вантажопідйомність |
10500 кг. |
|
Допустима повна маса |
18000 кг. |
| Габаритні розміри (Д×Ш×В) | 9400×2500×3000 мм |
| Колісна база | 5550 мм |
| Передній звіс | 1450 мм |
| Задній звіс | 2300 мм |
| Повна довжина рами | 8200 мм |
| Монтажна довжина рами | 7200 мм |
| Ширина рами (зовнішня) | 850 мм |
| Ширина кабіни | 2300 мм |
| Колія передньої осі | 2050 мм |
| Колія задньої осі | 1850 мм |
| Двигун | Scania, дизель |
| Потужність | 360 к.с. (265 кВт) |
| Екологічний стандарт | Euro 5 |
| КПП | Scania GR875, автомат |
| Підвіска | Ресора / пневмо |
| Розмір шин | 315/70R22,5 |
| Паливний бак | 400 л |
| Гальмівна система | ABS |
| Системи безпеки | ESP |
| Кабіна | Зі спальним місцем |
| Комфорт | Круїз-контроль, кондиціонер |
| Підсилювач керма | EPS |
Особливості
✅ Колісна база 5550 мм та монтажна довжина рами 7200 мм
-
Дозволяє встановлення довгих фургонів, платформ і спеціалізованих надбудов.
✅ Потужність 360 к.с.
-
Забезпечує впевнену динаміку на магістральних маршрутах із повним завантаженням.
✅ Підвіска ресора/пневмо
-
Поєднання вантажної витривалості та підвищеного комфорту руху.
✅ Паливний бак 400 л
-
Значний запас ходу для міжміських і міжнародних перевезень.
✅ Автоматична КПП Scania GR875
-
Зменшує втому водія та оптимізує витрату пального.
✅ Кабіна зі спальним місцем
-
Придатна для далеких рейсів і багатоденної експлуатації.