Контейнер для збору пластикових пляшок (ПЕТ). Призначений для забору сміття ручним способом. Також виготовляємо контейнер під забір сміття сміттєвозом.
Креслення

Опис
Контейнер для збору пластикових пляшок (ПЕТ) є важливим елементом системи поводження з відходами. Цей контейнер спеціально розроблений для зручного збору сміття вручну, що робить його ідеальним для громадських місць, парків, торгових центрів та інших об'єктів. Крім того, ми також виготовляємо контейнери, які сумісні зі сміттєвозами, що дозволяє автоматизувати процес збирання відходів.
Контейнер сміттєвий призначений для збору, тимчасового зберігання та подальшого завантаження в сміттєвози побутових відходів, таких як папір, ПЕТ пляшки, пластиковий посуд та інші відходи. Механічний спосіб вивантаження забезпечує швидкість і ефективність у роботі з відходами.
ТОВ "Київ-спецтех" є провідним виробником сміттєвих контейнерів і пропонує можливість проектування та виготовлення металевих контейнерів за індивідуальними розмірами замовника. Це дозволяє створювати продукцію, яка максимально відповідає потребам клієнтів і умовам експлуатації.
Контейнер для збору пластикових пляшок (ПЕТ) від ТОВ "Київ-спецтех" - це надійне, зручне і екологічно відповідальне рішення для сучасних потреб у збиранні та утилізації відходів.
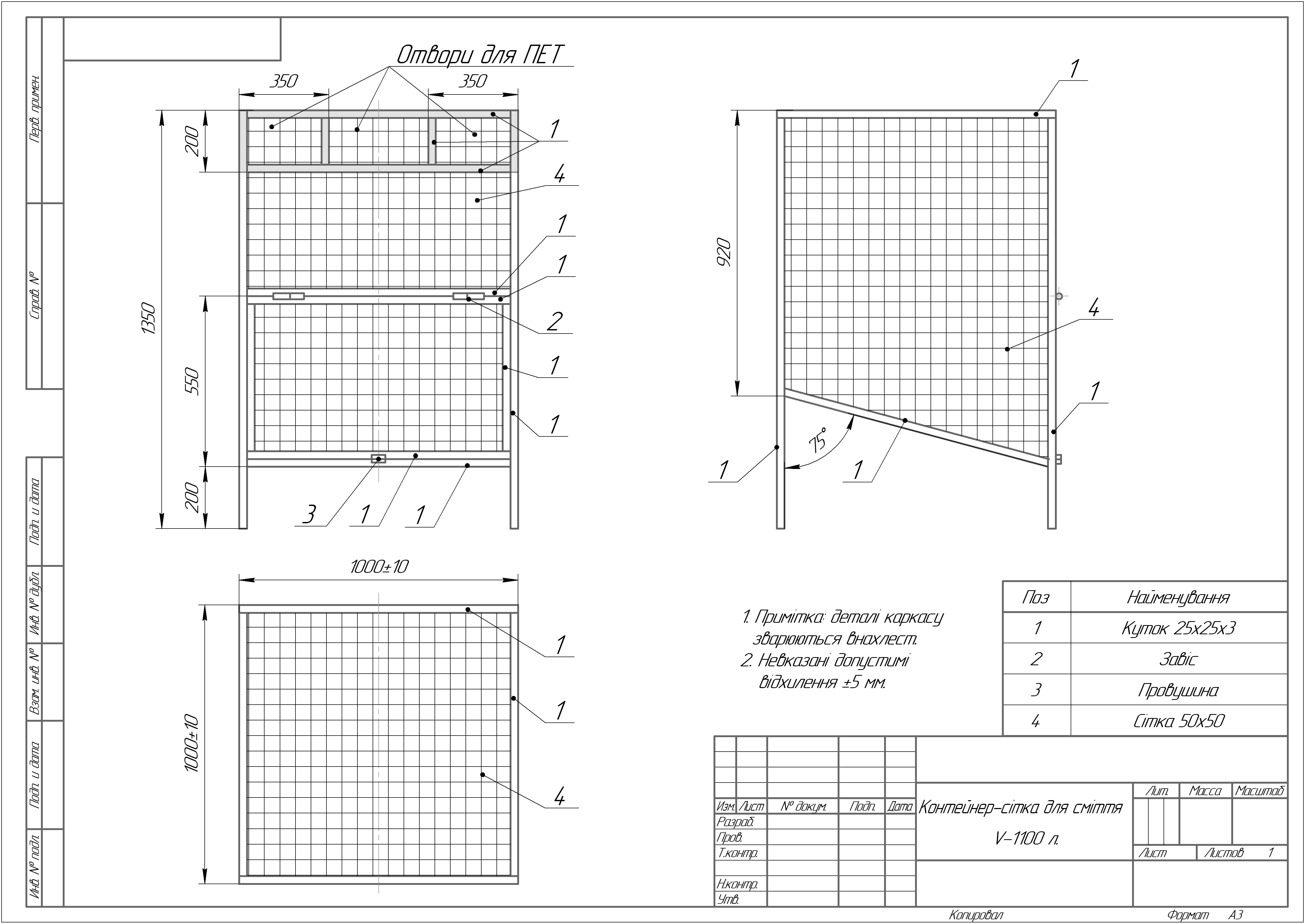
| Параметр | Показник |
| Тип | Контейнер-сітка для сміття |
| Об`єм | 1100.0 (л) |
| Комплектація колесами | Немає |
| Висота | 1350.0 (мм) |
| Ширина | 900.0 (мм) |
| Довжина | 900.0 (мм) |
| Колір | за бажанням Замовника |
| Виробник | ТОВ "Київ-Спецтех" |
| Країна виробник | Україна |
Особливості
-
Міцність і довговічність: Контейнери виготовляються з високоякісних матеріалів, що забезпечує їх довговічність і стійкість до пошкоджень.
-
Зручність у використанні: Контейнер легко заповнюється вручну і має оптимальні розміри для розміщення в різних умовах.
-
Індивідуальний підхід: Можливість виготовлення контейнерів за індивідуальними розмірами та в бажаному кольорі дозволяє максимально відповідати потребам замовників.
-
Екологічність: Контейнери сприяють покращенню системи збору і переробки відходів, що є важливим для збереження навколишнього середовища.